物件で探す
物件詳細
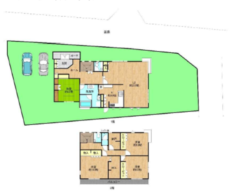
叡山電鉄「二軒茶屋」より徒歩約3分の4SLDK!上賀茂別荘
価格
- 5,480万円
利回り
叡山電鉄「二軒茶屋」より徒歩約3分の4SLDK!上賀茂別荘
・叡山電鉄鞍馬線「二軒茶屋」駅より徒歩約3分
・土地面積...368.74㎡
・駐車場有...2台
・現在空家
京都市北区上賀茂神山
- 叡山電鉄鞍馬線「二軒茶屋」駅より徒歩約3分
-
構造
-
軽量鉄骨造スレート葺2階建
-
築年数
-
1992年2月19日
土地面積
368.74m2
延床面積
196.21m2
建ペイ率
40%
容積率
60%
現状
空家
総戸数
間取り
4SLDK
